508-10 Diamond St, PHILADELPHIA, PA

$269,900

Previous Next

0.02

Acres

About 508-10 Diamond St

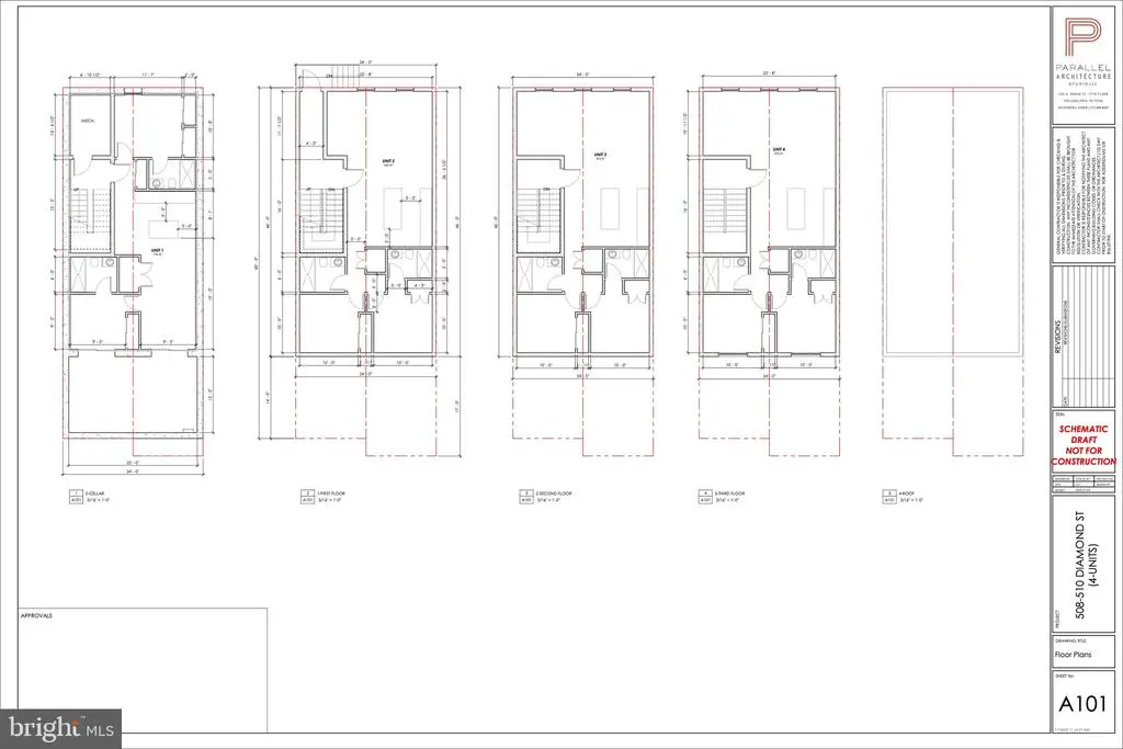
Outstanding shovel-ready development opportunity in the Temple University/Old Kensington corridor. This double lot at 508–510 Diamond Street is being offered with approved plans and permits for four residential units, allowing you to bypass the lengthy zoning and approval process and start construction immediately. The property is surrounded by ongoing redevelopment and new construction, with strong rental demand from both Temple University and the surrounding neighborhoods. With close proximity to public transportation, major access routes, and the growing amenities of Old Kensington and Fishtown, this site offers excellent potential for long-term value and cash flow. Ideal for builders or investors seeking a fully entitled project in one of Philadelphia’s fastest-growing markets.

Features of 508-10 Diamond St

MLS® # PAPH2532292
Price $269,900
Bathrooms 0.00
Acres 0.02
Type Land
Sub-Type Land
Status Active

Community Information

Address 508-10 Diamond St
Area 19122
City PHILADELPHIA
County PHILADELPHIA-PA
State PA
Municipality PHILADELPHIA
Zip Code 19122

Amenities

Is Waterfront No

School Information

District PHILADELPHIA CITY

Additional Information

Date Listed August 28th, 2025
Days on Market 63
Zoning RM1
Foreclosure No
Short Sale No
RE / Bank Owned No

Listing Details

OfficeRE/MAX Access
Contact Info2154002600

Listing Map

Request a Showing

Provide a valid email address.
When would you like to view this property?