About Lot#2, Lot#3, Lot#4 Old Elk Neck Rd
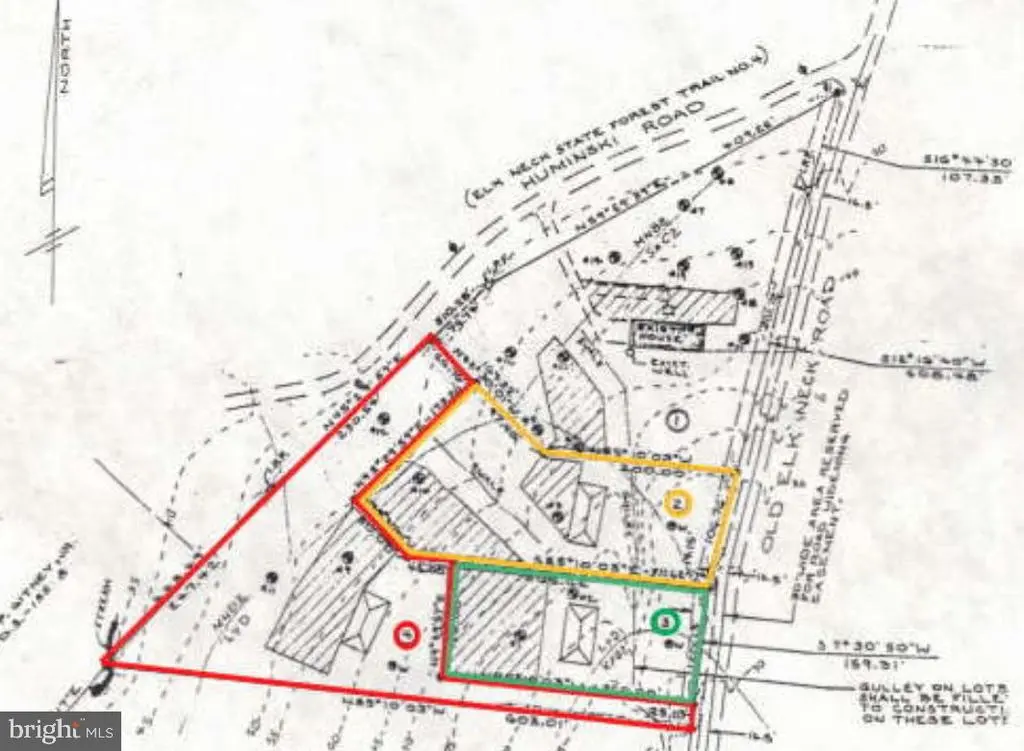
These Beautiful Lots Are Surrounded By Established Homes and Secluded With Many Mature Trees, Clear What You Want and Still Have Privacy! 3 Perc Approved Lots, All Deeded Separately! Owner Wants To Sell All Together In One Transaction. This Is A Developers Dream! Or Someone Looking For The Perfect Lot For There Forever Home To Be Built - Pick Your Favorite And Re-Sell The Others Or Pick Your Desired Home Site And Spread Out On All 3.35 Acres Total! (Individually;Lot#2 is 1.05 Acre, Lot#3 is .72 Acre, and Lot#4 is 1.58 Acres) Navigate Your GPS To 3220 Old Elk Neck Road, Elkton And The Property Is Across The Road From That Address. Look At Surveyor Map In Attached Documents. All Lots "Front" To Old Elk Neck Road And Lot#4 Also Backs To Huminski Road; For An Additional Access Point You Can Navigate Your GPS To 39 Huminski Road And Lot#4 Is Across The Road From That Address. Please Schedule With Showing Agent Prior To Walking The Property. NOTE: See Documents Attached; Forest Stand Delineation and Stand Narrative and Wetland Delineation Report Provided by Davis & Associates Environmental Consulting; The Ditch Cutting Through the Lots is NOT Regulated and Can Be Filled In. These Lots Are Ready For You!!!
Features of Lot#2, Lot#3, Lot#4 Old Elk Neck Rd
| MLS® # | MDCC2015302 | 
|---|---|
| Price | $199,000 | 
| Bathrooms | 0.00 | 
| Acres | 3.35 | 
| Type | Land | 
| Sub-Type | Land | 
| Status | Active Under Contract | 
Community Information
| Address | Lot#2, Lot#3, Lot#4 Old Elk Neck Rd | 
|---|---|
| Subdivision | NONE | 
| City | ELKTON | 
| County | CECIL-MD | 
| State | MD | 
| Zip Code | 21921 | 
Amenities
| Is Waterfront | No | 
|---|
Exterior
| Lot Description | Additional Lot(s) | 
|---|
School Information
| District | CECIL COUNTY PUBLIC SCHOOLS | 
|---|---|
| Elementary | ELK NECK | 
| Middle | NORTH EAST | 
| High | NORTH EAST | 
Additional Information
| Date Listed | April 4th, 2025 | 
|---|---|
| Days on Market | 132 | 
| Zoning | ST | 
| Foreclosure | No | 
| Short Sale | No | 
| RE / Bank Owned | No | 
Listing Details
| Office | Key Realty, Incorporated | 
|---|

